【Canberra】 The Commodore (D27)
Project Details

THE COMMODORE 誉苑
D27 坎贝拉
【North Condo】
Pricing From:
3.4.5 BEDROOM AVAILABLE
(1.2 BEDROOM SOLD OUT)
| 1 Bed | 1 Bath |
| 484 Sqft | $1,938 psf |
99 Yrs Leasehold 219 Units TOP Dec 2024 Height 5 Storey 1 Bed 2 Bed 2 + Study (P) 3 Bed 3 + Study (P) 4 Bed 4 Bed + Study (E) 4 Bed + Study (P) 5 Bed + Study (E)

Only 3 Mins Walk to Canberra MRT / Canberra Plaza! One of the Last Few New Launches near MRT with AFFORDABLE Prices!
Capital Protection and Assurance! Surrounded with Future HDB Upgraders!
Chongfu Primary School (Top 8 Primary School in SG) and Canberra Primary School (Top 45) is within 2km radius !
Enjoy Landed Views all day! Upcoming North-South Corridor Expressway to get to Central within 15 Mins!
Upcoming Bukit Canberra Town at Sembawang MRT with an array of Facilities for all ages to enjoy!
PROJECT DETAILS
| LAYOUT(S) |
Size |
PSF |
Price |
|---|---|---|---|
|
|
463 | SOLD | SOLD OUT |
|
2 Bed
|
624 | SOLD | SOLD OUT |
|
2 Bed + Study (P)
|
743 | SOLD | SOLD OUT |
|
3 Bed
|
1152 | SOLD | SOLD OUT |
|
3 Bed + Study (P)
|
1023 | SOLD | SOLD OUT |
|
4 Bedt
|
1184 | $1,459 | $1,727,000 |
|
4 Bed + Study (P)
|
1270 | $1,363 | $1,848,000 |
|
4 Bed + Study (E)
|
1421 | SOLD | SOLD OUT |
|
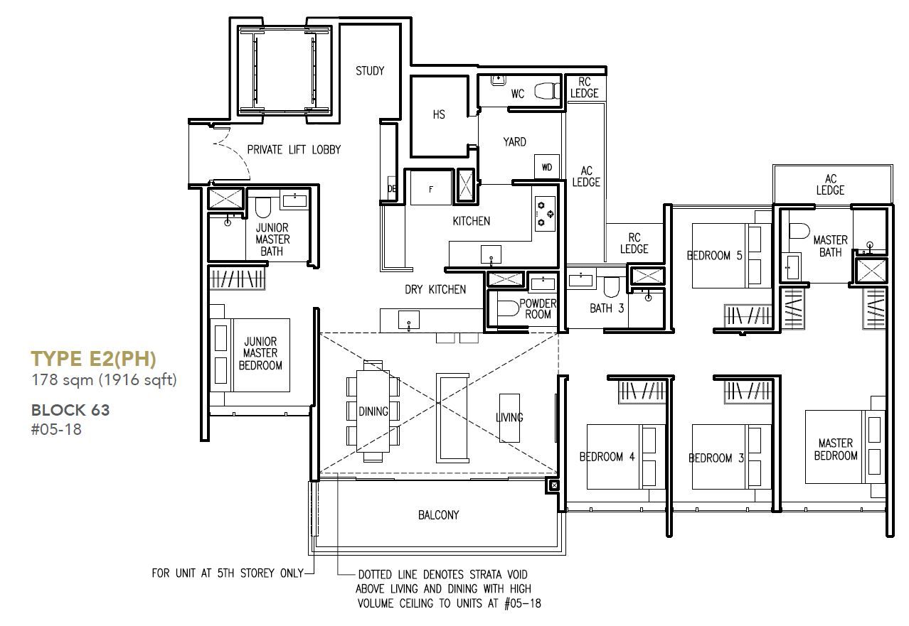
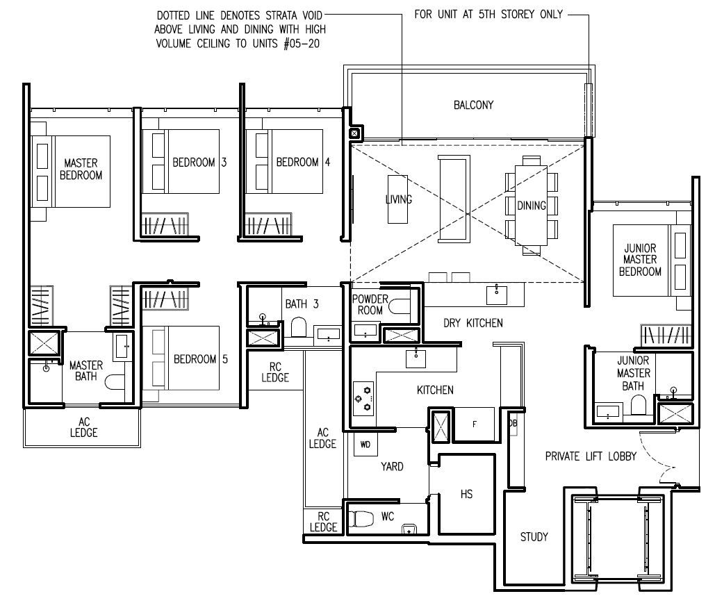
5 + Study (E)
|
1668 | $1,504 | $2,508,000 |
|
Units Sold
|
|||
(E) = Exclusive
(P) = Premium
*All Pricing Are Subjected to Developer Changes & Availability. Contact Us Now.
| Project Name | The Commodore |
|---|---|
|
|
|
Tenure: |
99 Yrs |
TOP: |
Dec 2024 |
Location: |
59 Canberra Drive, Singapore 757063 |
Number of Units: |
219 Units |
Building Height: |
5 Storey |
|
No of Facilities: |
34 |
|
Layout Types |
Sqft |
Units |
| 1 Bedroom | 463 | 25 |
| 2 Bedroom | 624 | 25 |
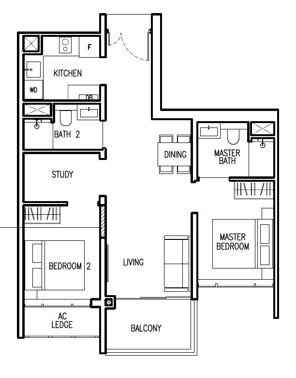
| 2 Bed + Study (P) | 743 - 786 | 60 |
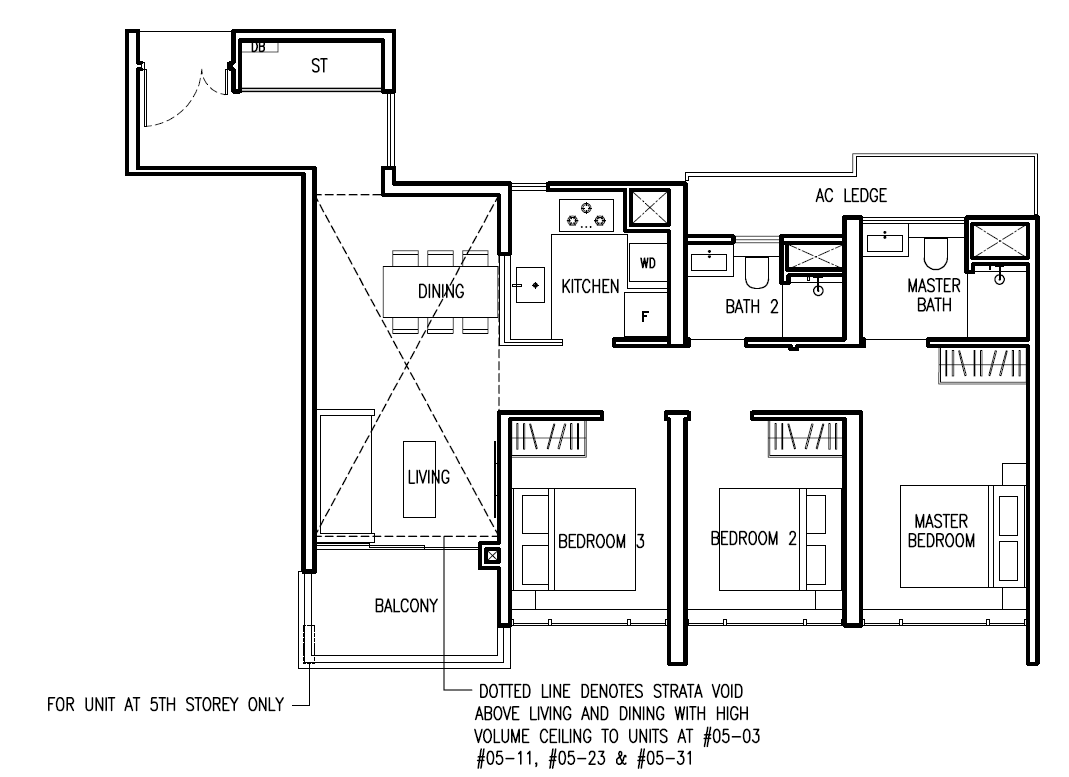
| 3 Bedroom | 969 - 1152 | 20 |
| 3 Bed + Study (P) | 1023 | 25 |
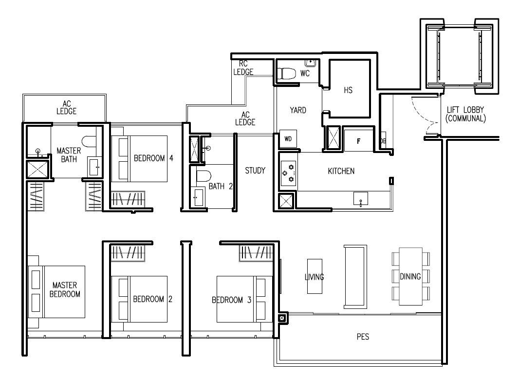
| 4 Bedroom | 1184 - 1356 | 19 |
| 4 Bed + Study (E) | 1421 | 8 |
| 4 Bed + Study (P) | 1270 - 1464 | 27 |
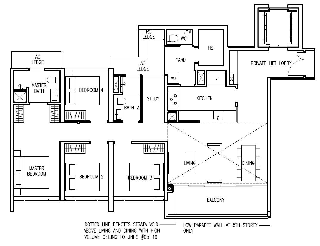
| 5 Bed + Study (E) | 1668 - 1905 | 10 |
(P) = Premium (E) = Exclusive
LOCATION DETAILS

Why Buyers buy here?
AMENITIES
MRT | School | Supermarket | Mall
CANBERRA MRT (280M AWAY)
East West Line (EWL)
North South Line (NSL)
North East Line (NEL)
Circle Line (CCL)
Downtown Line (DTL)
Thomson-East Coast Line (TEL)
Jurong Region Line (JRL)
Cross Island Line (CRL)
- 1. SEMBAWANG PRIMARY SCHOOL
(860M AWAY) - 2. AHMAD IBRAHIM PRIMARY SCHOOL
(985M AWAY)
- 1. CANBERRA PRIMARY SCHOOL [TOP 45]
- 2. CHONGFU SCHOOL [TOP 8]
- 3. JIEMIN PRIMARY SCHOOL
- 4. ENDEAVOUR PRIMARY SCHOOL
- 5. XISHAN PRIMARY SCHOOL
- 6. YISHUN PRIMARY SCHOOL
- 7. WELLINGTON PRIMARY SCHOOL
- GIANT SUPERMARKET
(300M AWAY) - NTUC SUPERMARKET
(320M AWAY)
SITE PLAN
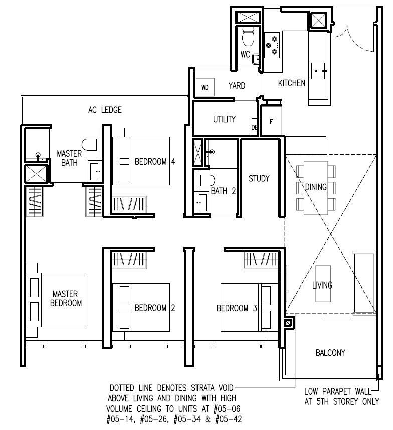
FLOOR PLAN
Type: A
| Price: | $ | SOLD | SOLD |
| 1026000 | 0.25 | ||
| 1026000 | 0.75 | ||
| 25% *D.P: | $ | - | |
| 75% Loan: | $ | - | - |
| Tenure: | 30 | ||
| Interest: | 1% | ||
| Monthly: | $ | - | |
| 769500 | 0.01 | ||
| 7695 | 30 | ||
| 230850 | 769500 | ||
| 1000350 | 0.00360 | ||
| 3601.26 | 0.6873 |
you have to Re-Tabulize 3 times for Calculation to be fully correct !!
*All Pricing Are Subjected to Developer Changes & Availability. Contact Us Now.
A 463 Sqft
Type: B1
| Price: | $ | SOLD | SOLD |
| 1770000 | 0.25 | ||
| 1770000 | 0.75 | ||
| 25% *D.P: | $ | - | |
| 75% Loan: | $ | - | - |
| Tenure: | 30 | ||
| Interest: | 1% | ||
| Monthly: | $ | - | |
| 1327500 | 0.01 | ||
| 13275 | 30 | ||
| 398250 | 1327500 | ||
| 1725750 | 0.00360 | ||
| 6212.7 | 0.6873 |
you have to Re-Tabulize 3 times for Calculation to be fully correct !!
*All Pricing Are Subjected to Developer Changes & Availability. Contact Us Now.
B1 624 Sqft
Type: B2
| Price: | $ | SOLD | SOLD |
| 2639000 | 0.25 | ||
| 2639000 | 0.75 | ||
| 25% *D.P: | $ | - | |
| 75% Loan: | $ | - | - |
| Tenure: | 30 | ||
| Interest: | 1% | ||
| Monthly: | $ | - | |
| 1979250 | 0.01 | ||
| 19792.5 | 30 | ||
| 593775 | 1979250 | ||
| 2573025 | 0.00360 | ||
| 9262.89 | 0.6873 |
you have to Re-Tabulize 3 times for Calculation to be fully correct !!
*All Pricing Are Subjected to Developer Changes & Availability. Contact Us Now.
B2 743 Sqft
B3 743 Sqft
Type: C1(PH)
| Price: | $ | SOLD | SOLD |
| 1508000 | 0.25 | ||
| 1508000 | 0.75 | ||
| 25% *D.P: | $ | - | |
| 75% Loan: | $ | - | - |
| Tenure: | 30 | ||
| Interest: | 1% | ||
| Monthly: | $ | - | |
| 1131000 | 0.01 | ||
| 11310 | 30 | ||
| 339300 | 1131000 | ||
| 1470300 | 0.00360 | ||
| 5293.08 | 0.6873 |
you have to Re-Tabulize 3 times for Calculation to be fully correct !!
*All Pricing Are Subjected to Developer Changes & Availability. Contact Us Now.
C1(PH) 1152 Sqft
Type: C2
| Price: | $ | SOLD | SOLD |
| 1522000 | 0.25 | ||
| 1522000 | 0.75 | ||
| 25% *D.P: | $ | - | |
| 75% Loan: | $ | - | - |
| Tenure: | 30 | ||
| Interest: | 1% | ||
| Monthly: | $ | - | |
| 1141500 | 0.01 | ||
| 11415 | 30 | ||
| 342450 | 1141500 | ||
| 1483950 | 0.00360 | ||
| 5342.22 | 0.6873 |
you have to Re-Tabulize 3 times for Calculation to be fully correct !!
*All Pricing Are Subjected to Developer Changes & Availability. Contact Us Now.
C2 1023 Sqft
Type: D1
| Price: | $ | 1727000 | 1,727,000 |
| 1727000 | 0.25 | ||
| 1727000 | 0.75 | ||
| 25% *D.P: | $ | 431,750 | |
| 75% Loan: | $ | 1295250 | 1,295,250 |
| Tenure: | 30 | ||
| Interest: | 1% | ||
| Monthly: | $ | 4,166 | |
| 1295250 | 0.01 | ||
| 12952.5 | 30 | ||
| 388575 | 1295250 | ||
| 1683825 | 0.00360 | ||
| 6061.77 | 0.6873 |
you have to Re-Tabulize 3 times for Calculation to be fully correct !!
*All Pricing Are Subjected to Developer Changes & Availability. Contact Us Now.
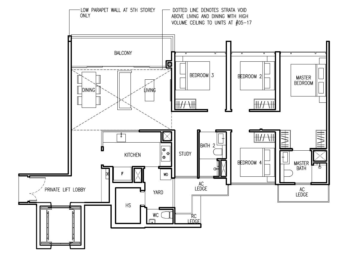
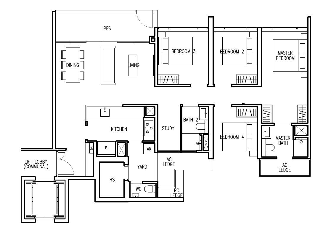
D1 1184 Sqft
Type: D2
| Price: | $ | 1848000 | 1,848,000 |
| 1848000 | 0.25 | ||
| 1848000 | 0.75 | ||
| 25% *D.P: | $ | 462,000 | |
| 75% Loan: | $ | 1386000 | 1,386,000 |
| Tenure: | 30 | ||
| Interest: | 1% | ||
| Monthly: | $ | 4,458 | |
| 1386000 | 0.01 | ||
| 13860 | 30 | ||
| 415800 | 1386000 | ||
| 1801800 | 0.00360 | ||
| 6486.48 | 0.6873 |
you have to Re-Tabulize 3 times for Calculation to be fully correct !!
*All Pricing Are Subjected to Developer Changes & Availability. Contact Us Now.
D2 1270 Sqft
D3a 1378 Sqft
D4a 1378 Sqft
Type: D3
| Price: | $ | SOLD | SOLD |
| 2090000 | 0.25 | ||
| 2090000 | 0.75 | ||
| 25% *D.P: | $ | - | |
| 75% Loan: | $ | - | - |
| Tenure: | 30 | ||
| Interest: | 1% | ||
| Monthly: | $ | - | |
| 1567500 | 0.01 | ||
| 15675 | 30 | ||
| 470250 | 1567500 | ||
| 2037750 | 0.00360 | ||
| 7335.9 | 0.6873 |
you have to Re-Tabulize 3 times for Calculation to be fully correct !!
*All Pricing Are Subjected to Developer Changes & Availability. Contact Us Now.
D3 1421 Sqft
D4 1432 Sqft

Type: E1(P1)
| Price: | $ | 2508000 | 2,508,000 |
| 2508000 | 0.25 | ||
| 2508000 | 0.75 | ||
| 25% *D.P: | $ | 627,000 | |
| 75% Loan: | $ | 1881000 | 1,881,000 |
| Tenure: | 30 | ||
| Interest: | 1% | ||
| Monthly: | $ | 6,050 | |
| 1881000 | 0.01 | ||
| 18810 | 30 | ||
| 564300 | 1881000 | ||
| 2445300 | 0.00360 | ||
| 8803.08 | 0.6873 |
you have to Re-Tabulize 3 times for Calculation to be fully correct !!
*All Pricing Are Subjected to Developer Changes & Availability. Contact Us Now.
E1P1 1668 Sqft
E1 1679 Sqft
DIRECT DEVELOPER PRICE
100% Best Price Guarantee ! Early Bird Price ! Exclusive VVIP Preview !
FAST RESPONSE TIME
Immediate Viewing of All Multiples Showflat for Comparison
Free Cash-Flow & Timeline Planning
Lifetime After-sales Services Provided
BEST BUYERS' EXPERIENCE
Have A Ease of Mind Seamless Transition to Your Next New Home
Proven in-House Asset Capital Growth Strategists for Your Current to Future Property's Stages Direction
Call Us At +65-61007118
For Latest Pricing, Brochure & Viewing Arrangement.








































